Bostäder och priser

Planerad inflyttningsstart i Torgstråket:

Hus 1 – Oktober / November 2026
Hus 2 – November / December 2026
Hus 3 – December 2026 / Januari 2027
Hus 4 – Januari / Februari 2027

Exempel på planlösningar

Lägenheter med fönster i tre väderstreck, fria lägen och förråd i källaren​

2 ROK

Yta: 61 kvm

Rymlig 2:a med stort kök och mycket förvaring. 

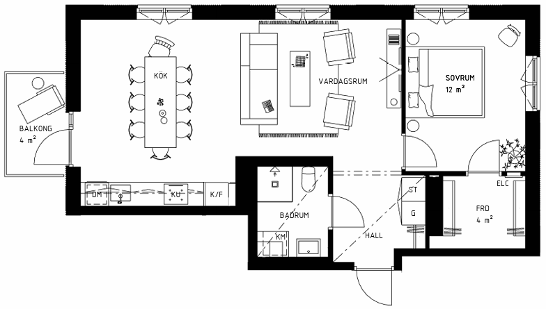
3 ROK

Yta: 73 kvm

Socialt kök med fönster ut mot framsidan. Stor balkong i
soligt läge. Yta som lätt kan omvandlas till hemmakontor.

4 ROK

Yta: 92 kvm

Rymligt kök med plats för många. Stor balkong och
två badrum med duschmöjligheter. 

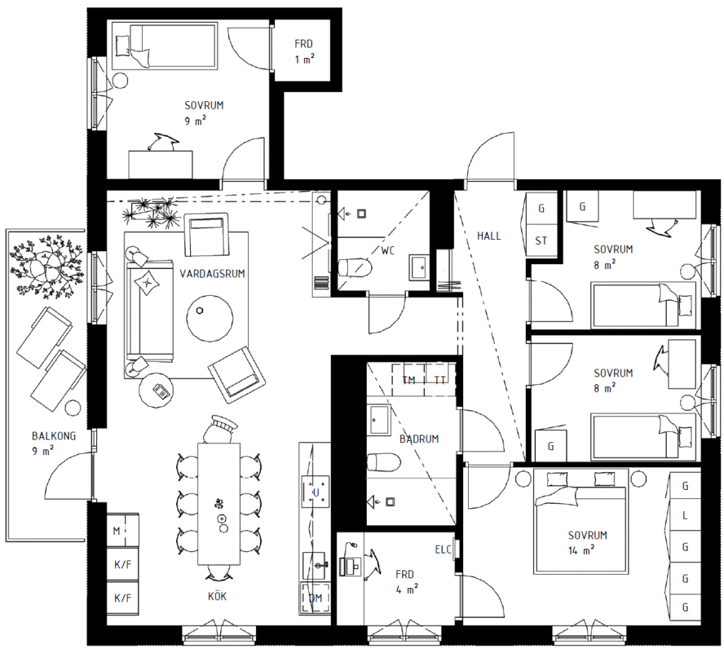
5 ROK

Yta: 103 kvm

Välplanerad lägenhet med lättmöblerade sovrum. 
Stor balkong, plats för hemmakontor och två badrum.

Taklägenhet, 3 ROK

Yta: 86 kvm

Fönster i alla väderstreck, 360graders terrass med uteplats
under tak. Stora fönsterpartier och kamin i vardagsrum.